超小型三通氣動球閥 | CHSQ615F
超小型三通氣動球閥 產品說明
超小型三通氣動球閥采用硅溶膠精密鑄造不鍋鋼閥體及鋁合金氣缸,外表美觀,強度離。其中一片式連接具有林構緊凌、體積小、重握輕、密射性酸好、啟閉靈活(啟閉只需把球體轉動90°,方便而迅速),安裝方便等特點,主要用于石油、化工、右金,電力,制藥,食品等各個領域中。本系列三通球閥可裝上相應的氣動裝置,以實現遙控式自動控制,實現對管路介質的切換,閥門適用溫度-20-180℃。
超小型三通氣動球閥 性能參數
| 型號 | 通徑DN | 材質 | 壓力 | ||||||||
|---|---|---|---|---|---|---|---|---|---|---|---|
| CHCQ611F-1PC | 1/4" | 3/8" | 1/2" | 1" | 1-1/4" | 1-1/2" | 2" | 2-1/2" | 3" | 304或316 | 0.6-1.0-1.6MPa |
| CHCQ611F-2PC(三通) | 1/4" | 3/8" | 1/2" | 1" | 1-1/4" | 1-1/2" | 2" | 2-1/2" | 3" | 304或316 | 1.0-1.6-2.5MPa |
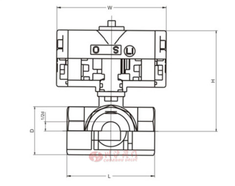
超小型三通氣動球閥 結構尺寸圖
超小型三通氣動球閥 連接尺寸
| DN | d | D | G | L | H | W | |
|---|---|---|---|---|---|---|---|
| in | mm | ||||||
| 1/4 | 6 | 4.5 | 21 | 1/4 | 45 | 74 | 88 |
| 3/8 | 10 | 7 | 20 | 3/8 | 45 | 74 | 88 |
| 1/2 | 15 | 9.2 | 25 | 1/2 | 57 | 74 | 88 |
| 3/4 | 20 | 12.5 | 34 | 3/4 | 71 | 79 | 86 |
| 1 | 25 | 15 | 39 | 1 | 71 | 81 | 88 |
更多>> 產品列表
- · 氣動法蘭球閥 | CHQ641F
- · 氣動對夾球閥 | CHQ671F
- · 氣動內螺紋球閥 | CHQ611F
- · 氣動快裝球閥 | CHQ681F
- · 氣動雙由令球閥 | CHQ611F
- · 大口徑氣動三通球閥 | CHQ644(5)F
- · 氣動襯氟球閥 | CHQ641F46
- · 氣動保溫球閥 | CHBQ641F
- · 氣動高壓球閥 | CHQ641N
- · 氣動真空球閥 | GUQ
- · 氣動調節球閥 | CHQ641F
- · 氣動V型調節球閥 | CHVQ647F
- · 氣動V型調節球閥 | CHVQ670F
- · 氣動偏心調節球閥 | CHPQ647F/H
- · 氣動三通調節球閥 | CHQ644(5)F
- · 氣動衛生級球閥 | CHQ681F
- · 氣動塑料球閥 | CHQ611F
- · 氣動三片式球閥 | CHQ641F
- · 氣動Y型三通球閥 | CHQ642F/H
- · 氣動三段式球閥 | CHTQ641F
- · 氣動兩片式球閥 | CHQ611F
- · 氣動高壓內螺紋球閥 | CHQ611N
- · 大口徑氣動法蘭球閥 | CHAWQ641F
- · 大口徑氣動固定式球閥 | CHAWQ647F/H
- · 大口徑氣動三通球閥 | CHAWQ644(5)F
更多>> 閥門圖片列表
更多>> 其他閥門
